- 淄博市福民化工设备有限公司
- 地址:山东省淄博市张周路
- 电话:400-0533-907
- 传真:0533-2860177
- 内贸:18753392299
- 外贸:18753392288
- 邮箱:fuminsale@126.com
您当前位置:主页 > 产品世界 > 搪玻璃(搪瓷)设备 > F系列搪玻璃反应釜(反应罐) >
F型搪玻璃/搪瓷反应釜(反应罐)
来源:福民化工??日期:2015-07-03



F型搪玻璃反应釜的规格有F1000、F1500、F2000、F2500、F3000、F5000、F6300、F8000、F10000、F12500、、F16000、F20000、F30000等。对于不同型号的设备,技术参数也是不同的,我们先大概了解一下搪玻璃反应釜的技术参数,具体的参数可以咨询在线顾问。
技术参数:
1.设计压力:罐体=0.2MPa、0.4MPa、0.6MPa、1.0MPa、夹套=0.6MPa
2.搅拌器:具有多种型式的搅拌器供用户选择
3.减速机:立式减速机
4.轴封:填料密封(0.2MPa)、单端面机械密封((OAMPa)、双端面机械密封(O.6MPa. l一 OMPa)
5.罐体设计压力超过0.6MPa的搪玻璃反应罐需特殊定货
6.K系列反应罐主体尺寸符台HG/ T2371-92. GB:T 25027-2010标准,并在此基础上进行了改进。
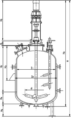
F型搪玻璃反应釜管口方位:


F型反应罐搪瓷反应罐外型尺寸及其参数表:
|
反应釜系列
|
F系列闭式搪玻璃反应釜反应罐参数表 |
||||||||||
|
反应釜型号
|
F-2500
|
F-4000
|
F-6300
|
F-12500
|
F-16000
|
F-20000
|
F-30000
|
||||
|
公称容积N(L)
|
2500
|
3000
|
4000
|
5000
|
6300
|
8000
|
10000
|
12500
|
16000
|
20000
|
30000
|
|
实际容积(L)
|
3385
|
3381
|
4780
|
6011
|
6866
|
9060
|
11674
|
13651
|
17446
|
21790
|
32610
|
|
换热面积(m2)
|
8.68
|
9.74
|
12.16
|
14.89
|
19.89
|
18.38
|
21.35
|
24.89
|
29.48
|
34.04
|
44.7
|
|
D1 mm
|
1600
|
1600
|
1600
|
1750
|
1750
|
2000
|
2200
|
2200
|
2400
|
2600
|
3000
|
|
D2 mm
|
1750
|
1750
|
1750
|
1900
|
1900
|
2200
|
2400
|
2400
|
2600
|
2800
|
3200
|
|
H1 mm
|
195
|
195
|
195
|
195
|
195
|
197
|
197
|
197
|
197
|
210
|
280
|
|
H2 mm
|
1590
|
1810
|
2290
|
2410.5
|
2766.5
|
2760
|
2933
|
3453
|
3696
|
3941
|
4440
|
|
H3 mm
|
1060
|
1060
|
1060
|
1200
|
1200
|
1200
|
1300
|
1300
|
1400
|
/
|
/
|
|
H4 mm
|
440
|
440
|
440
|
477.5
|
477.5
|
550
|
600
|
600
|
650
|
700
|
800
|
|
H5 mm
|
1358
|
1358
|
1358
|
1475
|
1475
|
1545
|
1770
|
1770
|
1865
|
1865
|
2200
|
|
H6 mm
|
540
|
540
|
540
|
600
|
600
|
600
|
600
|
600
|
600
|
600
|
700
|
|
d mm
|
800
|
800
|
800
|
900
|
900
|
1100
|
1200
|
1200
|
1300
|
1300
|
1500
|
|
H mm
|
4123
|
4343
|
4823
|
5158
|
5514
|
5652
|
6100
|
6620
|
7008
|
7316
|
8420
|
|
HO mm
|
3658
|
3878
|
4358
|
4633
|
4989
|
5127
|
5575
|
6095
|
6483
|
6791
|
7800
|
|
检查孔(mm)
|
300×400
|
300×400
|
300×400
|
300×400
|
300×400
|
300×400
|
300×400
|
300×400
|
450
|
450
|
450
|
|
参考重量(Kg)
|
3300
|
3660
|
4230
|
5090
|
5600
|
6846
|
8936
|
10466
|
12137
|
14169
|
20700
|
F型搪玻璃反应釜与K系列唐玻璃反应釜的材质是相同的,都是由含有SiO?的搪瓷釉料喷涂在钢制容器内表面,经高温灼烧工艺而牢固地密着于金属表面上而形成的。F型搪玻璃反应釜的独特之处则在于闭式搪瓷反应釜罐盖与罐体一体不可分的反应釜。使用方便,易于维护维修。具有玻璃的稳定性和金属强度的双重优点,是一种优良的耐腐蚀化工设备,具有耐腐蚀、抗冲击、光滑美观、绝缘耐热、耐磨等可靠性能。搪瓷反应釜目前被广泛地应用于化工、石油、医药、农药、食品、染料等工业生产过程,是水解、中和、结晶、混合、乳化等最理想的设备。
F型搪玻璃反应釜也被称为F型搪玻璃反应罐、F型搪瓷反应釜、F型搪瓷反应罐、F型搪玻璃反应锅、F型搪瓷反应锅等。由于地区不同,搪瓷设备搪烧的温度不同,所以在搪玻璃反应釜和搪瓷反应釜有了细微的区别。 由于搪玻璃反应釜的用途与化工、石油、医药等有关,所以在一些功能上有独特之处,这就需在反应中能够达到充分搅拌的效果了,还配备了加热装置和温控系统,备有丰富的模块化功能选件,供您自由拓展额外功能,无需拆卸即可轻松进行清洗维护工作,使用从此变得更为简单。
关于F型搪玻璃反应釜的规格大小在上文小编已经提到了,所以在这就不多说了,如果大家有需求的话,可以联系我们的在线顾问,我们会竭诚为您服务!

上一篇:没有了
下一篇:没有了







