- 搪玻璃设备
- 王经理:05332860177
- 不锈钢有色金属设备
- 傅经理:13906430854
- 衬四氟设备及配件
- 傅经理:15253328001
- 技术咨询服务
- 王经理:18653342297
K3000L搪玻璃反应釜反应罐
来源:搪瓷反应釜厂家??日期:2020-05-22
K3000L搪玻璃反应釜反应罐作为中等罐,在企业生产中使用是比较多的,为了大家了解K3000L搪玻璃反应釜/反应罐,我们今天对其参数进行简单介绍,希望对大家了解K3000L搪玻璃反应釜有所帮助。
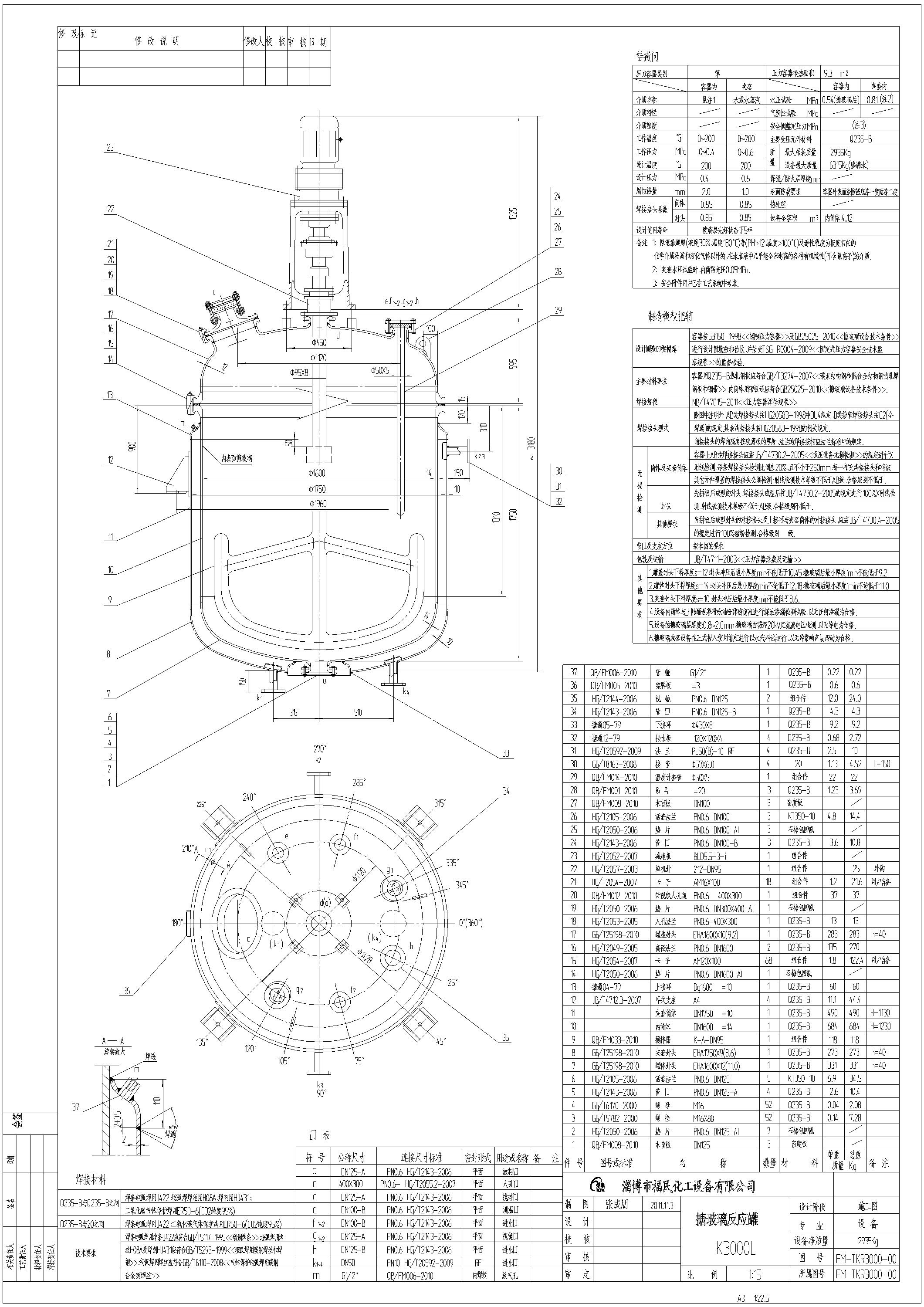
K3000L搪玻璃反应釜反应罐图纸:

K3000L搪玻璃反应釜反应罐技术参数值:
搪玻璃反应釜公称容积3000L,反应釜实际容积3237L,反应釜换热面积8.61㎡,反应釜罐体设计压力机械密封0.4MPa、夹套0.6MPa,反应釜参考重量3470㎏。一般采用5.5KW立式减速机,配有300×400人孔带有125的视镜,有多种型号的搪玻璃搅拌器供用户选择,K系列搪玻璃反应釜反应罐主体尺寸符合 HG/T2371-92 搪玻璃设备标准。

大家通过以上的图纸和文字,已经对K3000L搪玻璃反应釜反应罐有了客观的了解,客户朋友想要直观的了解搪玻璃反应釜,可以到淄博福民实地考察。淄博福民有20多年的搪玻璃设备生产经验,具有30000L搪玻璃反应釜生产实力,完善的设计、销售、售后服务体系。大家如需要K3000L搪玻璃反应釜反应罐可以咨询淄博福民相关人员,我们会竭诚为您服务。
淄博福民24小时客户服务热线:如果您对以上K3000L搪玻璃反应釜感兴趣或有疑问,请点击联系我们网页右侧的在线客服,或致电:18753392299/0533-2860177,淄博福民化工设备--您贴心的采购顾问。
上一篇:搪玻璃蒸馏罐蒸馏釜厂家






