- 搪玻璃设备
- 王经理:05332860177
- 不锈钢有色金属设备
- 傅经理:13906430854
- 衬四氟设备及配件
- 傅经理:15253328001
- 技术咨询服务
- 王经理:18653342297
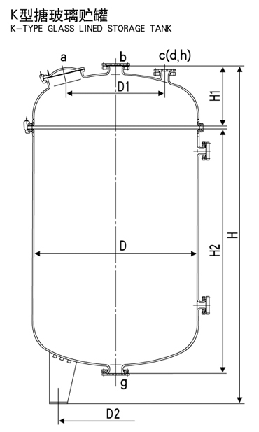
ZK型搪玻璃贮罐\储罐(开式)
来源:未知??日期:2020-06-29
ZK型搪玻璃贮罐储罐(开式)
ZK型搪玻璃贮罐储罐(开式)是搪玻璃贮罐储罐的,又称为ZK型搪玻璃贮罐储罐、ZK型搪瓷贮罐储罐等。
ZK型搪玻璃贮罐储罐(开式)同ZK系列搪玻璃反应釜和F系列搪玻璃反应釜的材质是相同的,都是由含高二氧化硅的玻璃衬在钢制容器的内表面,经高温灼烧而牢固地密着于金属表面上而形成的。所以ZK型搪玻璃贮罐储罐(开式)的用途也是很特殊的,ZK型搪玻璃贮罐储罐(开式)被广泛地应用于特殊的行业,例如化工、石油、食品、农药、医药等工业。
在特殊的行业中,对ZK型搪玻璃贮罐储罐的性能就是很大的考验,那么ZK型搪玻璃贮罐储罐(开式)有哪些优点是可以让它游刃有余地运用在这些化工行业中呢?由于ZK型搪玻璃贮罐储罐(开式)的材质和煅烧工艺的复杂性,则ZK型搪玻璃贮罐储罐(开式)具有了玻璃的稳定性和金属强度的双重特点,从而造就了ZK型搪玻璃贮罐储罐(开式)耐腐蚀、耐高温的特性。
ZK型搪玻璃贮罐储罐(开式)是工业设备,所以在使用时,也是有一些指导性地规范的,合理地使用ZK型搪玻璃贮罐储罐(开式),可以使ZK型搪玻璃贮罐储罐(开式)得寿命得以延长,为企业带来更多的效益,所以小编在此向大家介绍一下ZK型搪玻璃贮罐储罐(开式)的技术规范和维护等内容。
福民公司生产的ZK型搪玻璃贮罐储罐(开式)标准规格有50L、100L、200L、300L、400L、500L、800L、1000L、1250L、1500L、2000L、3000L、4000L、5000L等,对行业的各种需求都是能满足的,当然如果客户是有另需的,我公司也是可以根据客户的需求而进行非标ZK型搪玻璃贮罐定做的。
福民ZK型搪玻璃贮罐储罐质量值得信赖,客户可以放心使用。如果您还有疑问,可以咨询福民在线顾问,在线顾问会竭诚为您服务,期待与您的合作,祝您生活愉快!
上一篇:没有了
下一篇:没有了









